Recklinghausen , 45657 Recklinghausen
Adresse
Büroflächen
140 - 285 m²
Fläche (ca.)
ab 11,00 €/m²
Miete
140 m²
Teilbar ab
Energieausweis
Für diese Immobilie liegt uns noch kein Energieausweis vor bzw. wird zur Besichtigung mitgebracht.
Provision
Provisionsfrei für den Mieter

Ärzte aufgepasst | Attraktive Praxisfläche in hervorragender Lage | Ausbau nach Mieterwunsch |

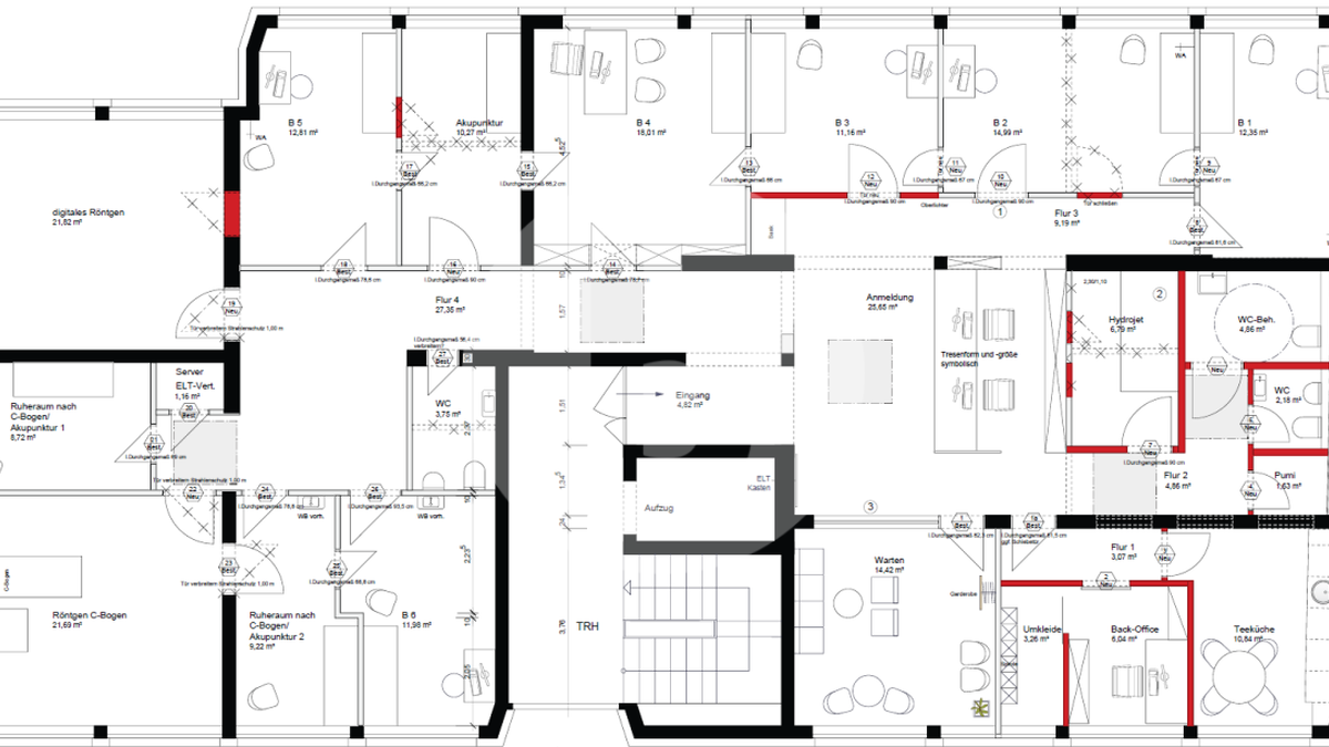
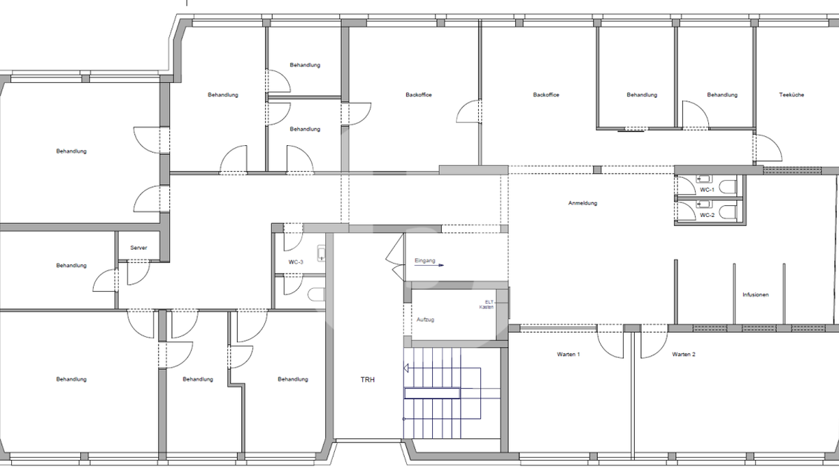
Das attraktive Ärztehaus befindet sich in bester Lage in Recklinghausen. Neben weiteren Ärzten aus verschiedenen Fachbereichen verfügt das Ärztehaus über eine Apotheke. Die vakante Fläche ist über ein Treppenhaus, als auch mit Hilfe eines Personenaufzuges bequem zu erreichen.

Die Fläche kann nach Mieterwünschen ausgestattet und individuell an die Bedürfnisse angepasst werden. Eine mögliche Grundrissplanung liegt dieser Anzeige bei.

Neben einer Bushaltestelle direkt vor dem Gebäude stehen Patientenparkplätze zur Verfügung.

Derzeit stehen die folgenden Flächen zur Disposition:

1. OG: 285 m²
Lagebeschreibung
Die Liegenschaft befindet sich in zentraler Innenstadtlage. Die Gewerbeimmobilie zeichnet sich durch eine optimale Anbindung an den öffentlichen Personennahverkehr aus. Zahlreiche Händler des täglichen Bedarfs und Gastronomen gewährleisten eine ideale Nahversorgung.

Unternehmen der Büromarktzone: Finanzamt Recklinghausen, ARAL,

Hotels der Umgebung: Residenz Hotel Am Festspielhaus, Parkhotel Engelsburg, Hotel am Quellberg
Ausstattung
• Bodenbelag: Teppichboden, Laminat
• Beleuchtung: Rasterdeckenleuchten
• Sonnenschutz: inneliegend, manuell
• Verkabelungsort: Anschlüsse an der Wand

Die Ausstattung kann auf Mieterwunsch angepasst werden!
Flächen im Überblick

Alle Preisangaben sind exkl. MwSt.

Halterner Straße 13
- ca. 285 m² - Büro
Flächenart
Büro
Freie Fläche
ca. 285 m²
Teilbar ab
140 m²
Miete
ab 11,00 €/m²
Bezug
Nach Vereinbarung