Hammfelddamm 6, 41460 Neuss
Adresse
Büroflächen
128 - 2.319 m²
Fläche (ca.)
ab 10,00 €/m²
Miete
128 m²
Teilbar ab
Energieausweis
Der Energieausweis wird zur Besichtigung mitgebracht.
Provision
Provisionsfrei für den Mieter
Besonderheiten
Cafeteria

Attraktive Büroflächen in Neuss

Das Objekt am Hammfelddamm präsentiert sich als markanter, sechsgeschossiger Rotklinkerbau, der leicht zurückversetzt zur Straße liegt und so einen repräsentativen ersten Eindruck vermittelt. Die sternförmige Gebäudestruktur ermöglicht eine besonders flexible Flächenaufteilung, sodass Mieteinheiten ab ca. 300 m² realisiert werden können. Jede Etage ist über zwei separate Treppenhäuser erschlossen, was eine vielseitige und effiziente Nutzung ermöglicht.

Ein architektonisches Highlight ist der großzügig verglaste Eingangsbereich, der durch seine offene Gestaltung einen einladenden Charakter schafft. Die repräsentative Vorfahrt unterstreicht den hochwertigen Auftritt des Gebäudes und sorgt für einen professionellen Empfang.
Lagebeschreibung
Das Objekt befindet sich in attraktiver Lage im etablierten Gewerbegebiet Hammfeld in Neuss, direkt am Hammfelddamm. Die Umgebung ist geprägt von modernen Büro-, Dienstleistungs- und Gewerbenutzungen und überzeugt durch ein professionelles und repräsentatives Umfeld. Dank der Nähe zu den Autobahnen A46 und A57 besteht eine hervorragende Verkehrsanbindung in Richtung Düsseldorf, Köln, Ruhrgebiet sowie zum Flughafen Düsseldorf.

Auch mit öffentlichen Verkehrsmitteln ist der Standort optimal erreichbar. Bushaltestellen und Bahnanschlüsse befinden sich in unmittelbarer Umgebung. Zusätzlich sorgen gastronomische Angebote, Einzelhandelsgeschäfte und weitere Versorgungseinrichtungen in der Nähe für eine sehr gute Infrastruktur und ein attraktives Arbeitsumfeld.
Ausstattung
- repräsentative Eingangszone
- abgehängte Decken mit Rastereinbauleuchten
- textiler Fußbodenbelag
- Raumtrennung mit Leichtbauwänden
- Aluminiumfenster mit Dreh-/Kippbeschlägen und Isolierverglasung (individuelle Lüftung möglich)
- teilweise Sonneschutzanlagen
- Personenaufzüge als Dreiergruppe
- Sanitärobjekte mit Mittelmosaik-Böden gefliest, Wände gekachelt
- rückwärtige LKW-Rampe und Lastenaufzug
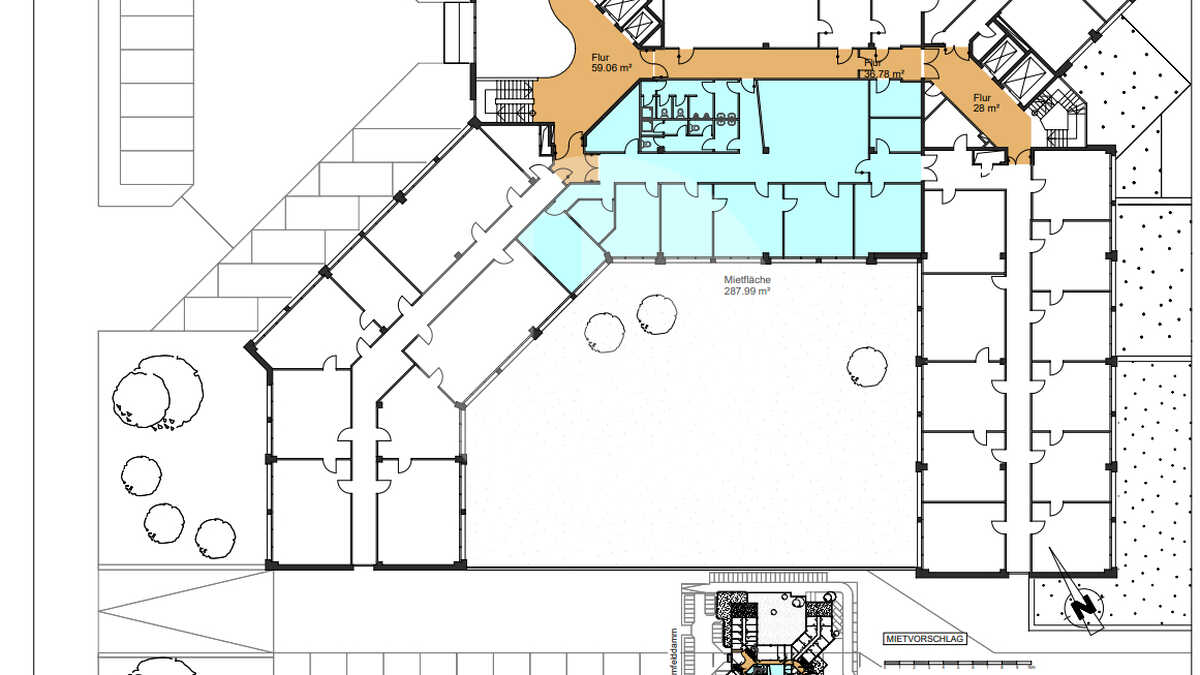
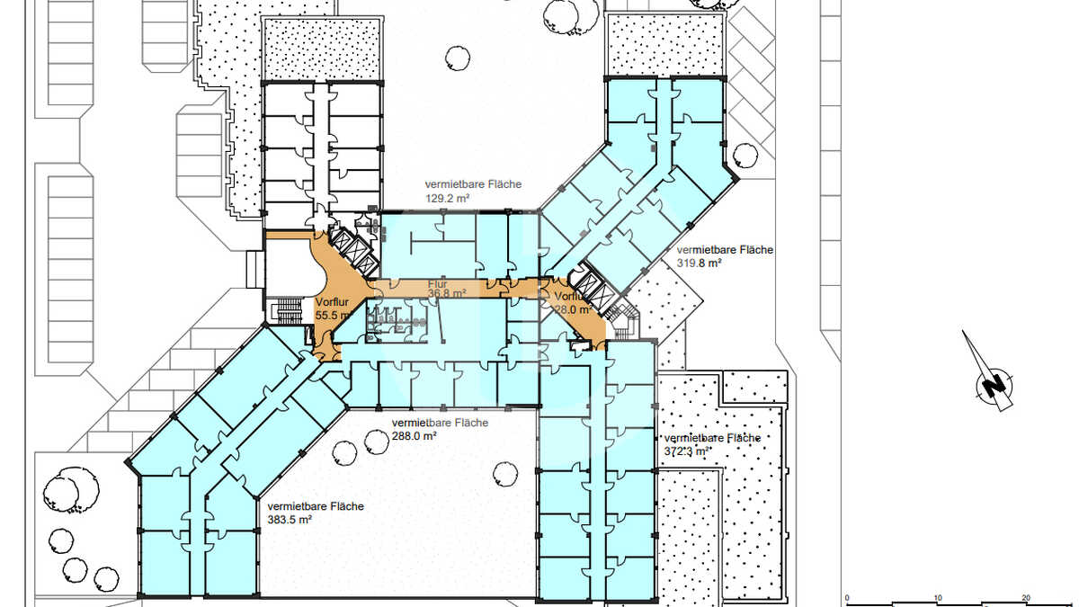
Flächen im Überblick

Alle Preisangaben sind exkl. MwSt.

- ca. 2.319 m² - Büro
Flächenart
Büro
Freie Fläche
ca. 2.319 m²
Teilbar ab
128 m²
Miete
ab 10,00 €/m²
Bezug
Nach Vereinbarung