Markt 9, 04109 Leipzig
Adresse
Büroflächen
26 - 53 m²
Fläche (ca.)
ab 18,50 €/m²
Miete
26 m²
Teilbar ab
Energieausweis
Für diese Immobilie liegt uns noch kein Energieausweis vor bzw. wird zur Besichtigung mitgebracht.
Provision
Provisionspflichtig für den Mieter

Kleines BUERO mit 2 Räumen direkt am Markt im KÖNIG ALBERT HAUS

Im König Albert Haus, einem der schönsten historischen Gebäude am Leipziger Marktplatz, befinden sich die bekannten und beliebten Gastronomiebetriebe wie das "Spizz" oder auch das "barfusz". In den Obergeschossen haben sich bereits verschiedenste Dienstleistungsunternehmen wie z.B. ein Kochstudio, ein Blutspendezentrum, ein BüroCenter mit vielen kleinen Unternehmen sowie die Wirtschaftsförderung der Stadt Leipzig niedergelassen.

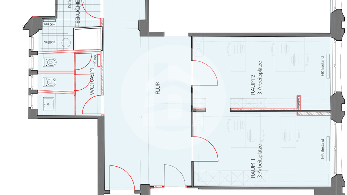
Die beiden Büroflächen befinden sich im 3. Obergeschoss des Hauses. Die Büroetage wird neben dem Treppenhaus über einen Aufzug erschlossen. Es stehen eine Teeküche und Toiletten zur gemeinschaftlichen Nutzung zur Verfügung. Die Büroflächen sind möbliert. Bei Bedarf können weitere/andere Möbel ergänzt werden. Die beiden Einheiten sind mit einer Tür verbunden, diese kann bei einer Einzelbüroanmietung verschlossen werden.

B1: ca. 16,96 m² zzgl. GF ca. 10 m² = 26,96 m² für 498,76 EUR zzgl. NKP 100,00 EUR
B2: ca. 16,44 m² zzgl. GF ca. 10 m² = 26,44 m² für 489,14 EUR zzgl. NKP 100,00 EUR

Bei Bedarf kann stundenweise ein Besprechungsraum hinzugebucht werden.
Lagebeschreibung
Die zentrale Lage und das gewachsene, vielfältige Umfeld haben die historische Innenstadt zu einem der beliebtesten Bürostandorte werden lassen. Alle wichtigen Einrichtungen wie das Neue Rathaus, die verschiedensten Banken, die Leipziger Universität und der Hauptbahnhof sind von hier aus innerhalb weniger Minuten zu erreichen. Über den Innenstadtring und die B2 sind sowohl die Autobahnanbindungen als auch diverse Stadtteile gut zu erreichen. Die S-Bahn Anbindung des Citytunnels direkt am Markt, sowie die umliegenden Straßenbahnhaltestellen gewährleisten die Anbindung an den Personennah- und Fernvekehr.
Flächen im Überblick

Alle Preisangaben sind exkl. MwSt.

- ca. 53 m² - Büro
Flächenart
Büro
Freie Fläche
ca. 53 m²
Teilbar ab
26 m²
Miete
ab 18,50 €/m²
Bezug
Nach Vereinbarung