Weißenfelser Straße 75-77, 04229 Leipzig
Adresse
Büroflächen
2.241 m²
Fläche (ca.)
ab 16,00 €/m²
Miete
2.241 m²
Teilbar ab
Energieausweis
Für diese Immobilie liegt uns noch kein Energieausweis vor bzw. wird zur Besichtigung mitgebracht.
Provision
Provisionsfrei für den Mieter

BUERO.flächen in Leipzig - Plagwitz

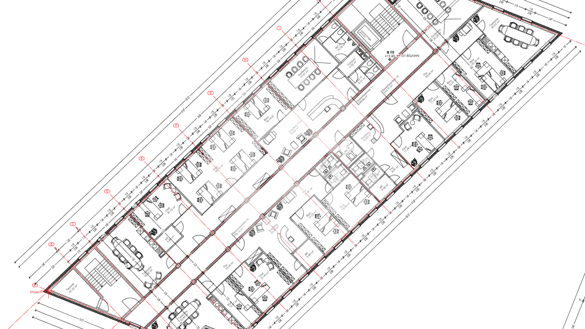
Das Areal der historischen Gewerbehöfe erstreckt sich auf 16 ha - überwiegend Gewerbefläche, welche mit Hallen, Bürogebäuden, Parkplätzen und Einkaufscentern bebaut ist. Aktuell sind auf dem Gelände eine Vielzahl von Gewerbetreibenden, Einzelhändlern, mittelständischen Handwerksbetrieben sowie Bildungseinrichtungen angesiedelt. Das Gebiet verfügt über großes Potenzial zur Entwicklung von Einzelhandelsflächen, Lagerflächen mit angeschlossenen Büros, Flächen für Gastronomie, Business-Center etc. In der Weißenfelser Straße wird ein moderner Neubau errichtet. Auf 5 Geschossen entstehen Büroflächen, die nach dem Raumprofil des Nutzers ausgebaut und ausgestattet werden. Im Gebäude stehen folgende Flächen zur Anmietung zur Verfügung:

1. Obergeschoss mit ca. 747,27 m²
2. Obergeschoss mit ca. 747,27 m²
3. Obergeschoss mit ca. 747,27 m²
4. Obergeschoss mit ca. 747,27 m²

Die Mietflächen können etagenweise angemietet werden. PKW Stellplätze für Mitarbeiter und Kunden können in dem nahe gelegen Parkhaus angemietet werden.
Lagebeschreibung
Die "Plagwitzer Höfe" befinden sich etwa 10 Autominuten von Leipzigs Innenstadt entfernt. Die A9, die A14 und die Neue Messe erreicht man in ca. 20 Minuten, den Flughafen in ca. 30 Minuten. Es liegt eine gute Anbindung an den ÖPNV vor. Das Gewerbegebiet ist somit optimal an die Infrastruktur angeschlossen. Der (Aus-)Bau der Mieteinheiten entsprechend der betriebsorganisatorischen Anforderungen des Mieters ist möglich.
Flächen im Überblick

Alle Preisangaben sind exkl. MwSt.

- ca. 2.241 m² - Büro
Flächenart
Büro
Freie Fläche
ca. 2.241 m²
Miete
ab 16,00 €/m²
Bezug
Nach Vereinbarung