Köln , 50668 Köln
Adresse
Büroflächen
377 - 681 m²
Fläche (ca.)
ab 22,00 €/m²
Miete
377 m²
Teilbar ab
Energieausweis
Für diese Immobilie liegt uns noch kein Energieausweis vor bzw. wird zur Besichtigung mitgebracht.
Provision
Provisionspflichtig für den Mieter

Ihr neuer Firmensitz nahe Reichenspergerplatz

Büroflächen
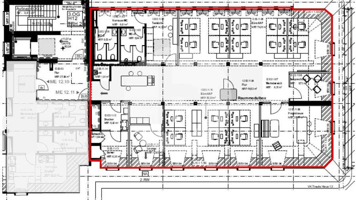
1. OG ME.12.05: ca. 304,77 m²
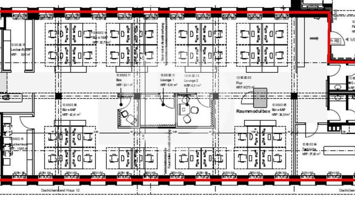
1. OG ME.12.06: ca. 377,00 m²

gesamt: ca. 681,77 m²
Ausstattung
- denkmalgeschützte Fassade und Treppenhaus
- objekteigene Tiefgarage
- behindertengerechter Zugang über separaten Hofeingang möglich
- Kühldecken in den Bürobereichen
- zwei Personenaufzüge
- Teeküche
Flächen im Überblick

Alle Preisangaben sind exkl. MwSt.

- ca. 681 m² - Büro
Flächenart
Büro
Freie Fläche
ca. 681 m²
Teilbar ab
377 m²
Miete
ab 22,00 €/m²
Bezug
Nach Vereinbarung