Gelsenkirchen , 45884 Gelsenkirchen
Adresse
Büroflächen
329 m²
Fläche (ca.)
ab 5,00 €/m²
Miete
329 m²
Teilbar ab
Energieausweis
Für diese Immobilie liegt uns noch kein Energieausweis vor bzw. wird zur Besichtigung mitgebracht.
Provision
Provisionsfrei für den Mieter
Besonderheiten
Barrierefrei

Flexible Büros | zahlreiche Stellplätze | hervorragende Erreichbarkeit

Bei der angebotenen Liegenschaft handelt es sich um eine im Jahr 1970 errichtete Büroimmobilie, welche über fünf Etagen verfügt. Die einzelnen Etagen sind sowohl über das Treppenhaus, als auch über einen Personenaufzug erschlossen. Der Bodenbelag der Büroräume besteht aus hochwertigem antistatischen Teppichboden. Des weiteren verfügen die Büroräumlichkeiten teilweise über einen außenliegenden, elektrischen Sonnenschutz, sowie Iso-Fenster.
Stellplätze stehen auf dem Gelände sowohl in überdachter Form, als auch in nicht-überdachter Form zur Verfügung.

Derzeit stehen die folgenden Flächen zur Disposition:
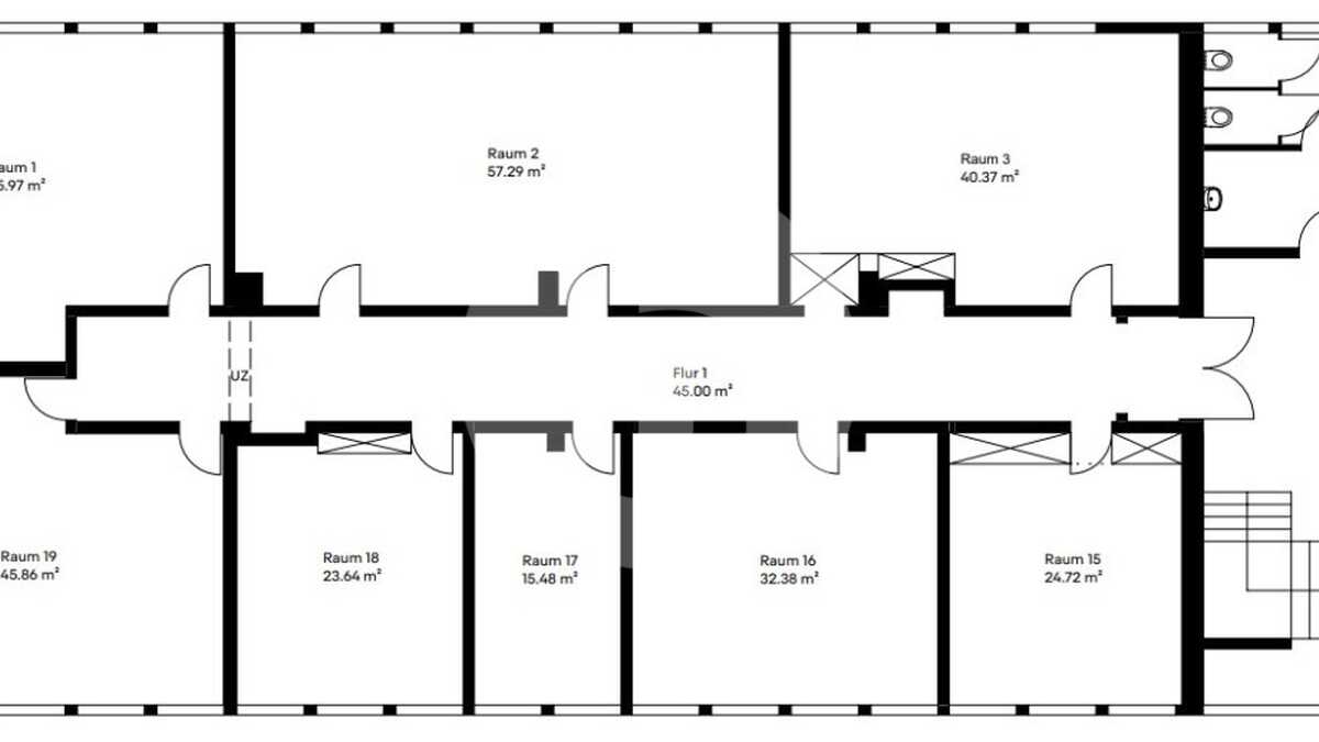
1. OG links: 329 m²
4.OG links: 268 m²
Lagebeschreibung
Die angebotene Liegenschaft ist in der Nähe der Gelsenkirchener Altstadt lokalisiert. Das Zentrum, sowie der Hauptbahnhof sind innerhalb weniger Minuten zu erreichen. Eine hervorragende Anbindung an den öffentlichen Nahverkehr, sowie umliegende Autobahnen, wie beispielsweise die A43 und A40 sind, garantieren eine optimale Erreichbarkeit. Die Nahversorgung ist durch die Nähe zur Innenstadt ebenfalls gewährleistet. In der näheren Umgebung befinden sich sowohl diverse Gewerbegebiete, als auch zahlreiche Wohngebiete.

Hotels in der Umgebung: Garten Residence Gelsenkirchen, Maritim Hotel Gelsenkirchen

Bedeutende Unternehmen der Büromarktzone: AOK Nordwest, Knappschaft
Ausstattung
• Bodenbelag: antistatischer Teppichboden
• EDV-Verkabelung: CAT 7 vom Vormieter
• Sonnenschutz: teilweise außenliegend, elektrisch
• Beleuchtung: Deckenbeleuchtung
• Verkabelungsort: Kabelkanäle
• Kühlung/ Lüftung: nach Vereinbarung
• Teeküche: voll ausgestattet

Die Ausstattung ist flexibel und wird individuell an den Mieter angepasst!
Flächen im Überblick

Alle Preisangaben sind exkl. MwSt.

- ca. 329 m² - Büro
Flächenart
Büro
Freie Fläche
ca. 329 m²
Miete
ab 5,00 €/m²
Bezug
Nach Vereinbarung