Stadtkern , 45127 Essen
Adresse
Energieausweis
Für diese Immobilie liegt uns noch kein Energieausweis vor bzw. wird zur Besichtigung mitgebracht.
Provision
Provisionsfrei für den Mieter

Essener Stadtkern - Ihre neue Bürofläche mit individueller Gestaltung | Stellplätze vorhanden

Das repräsentative Gebäude mit seiner frisch sanierten Fassade aus Klinkern und Kalksteinen steht seit 1988 unter Denkmalschutz. Heute bietet der Gebäudekomplex nicht nur der Deutschen Post Büro- und Einzelhandelsflächen - Auch Mieter unterschiedlichster Branchen finden hier optimale räumliche Bedingungen in einem außergewöhnlichen Objekt. Die Flächen sind komplett modernisiert und können nach Mieterwunsch angepasst werden.

Zur Zeit stehen folgende Flächen zur Disposition:

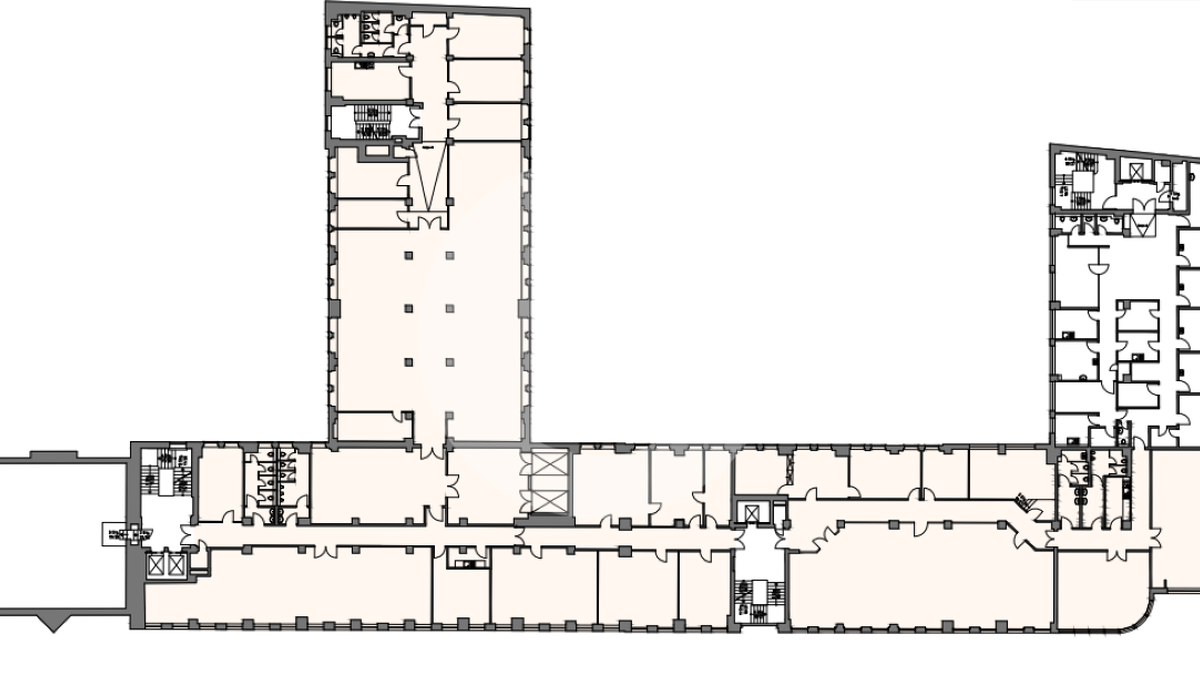
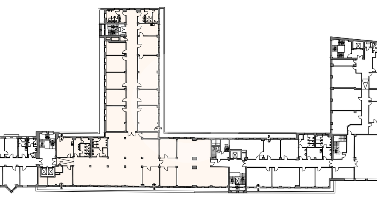
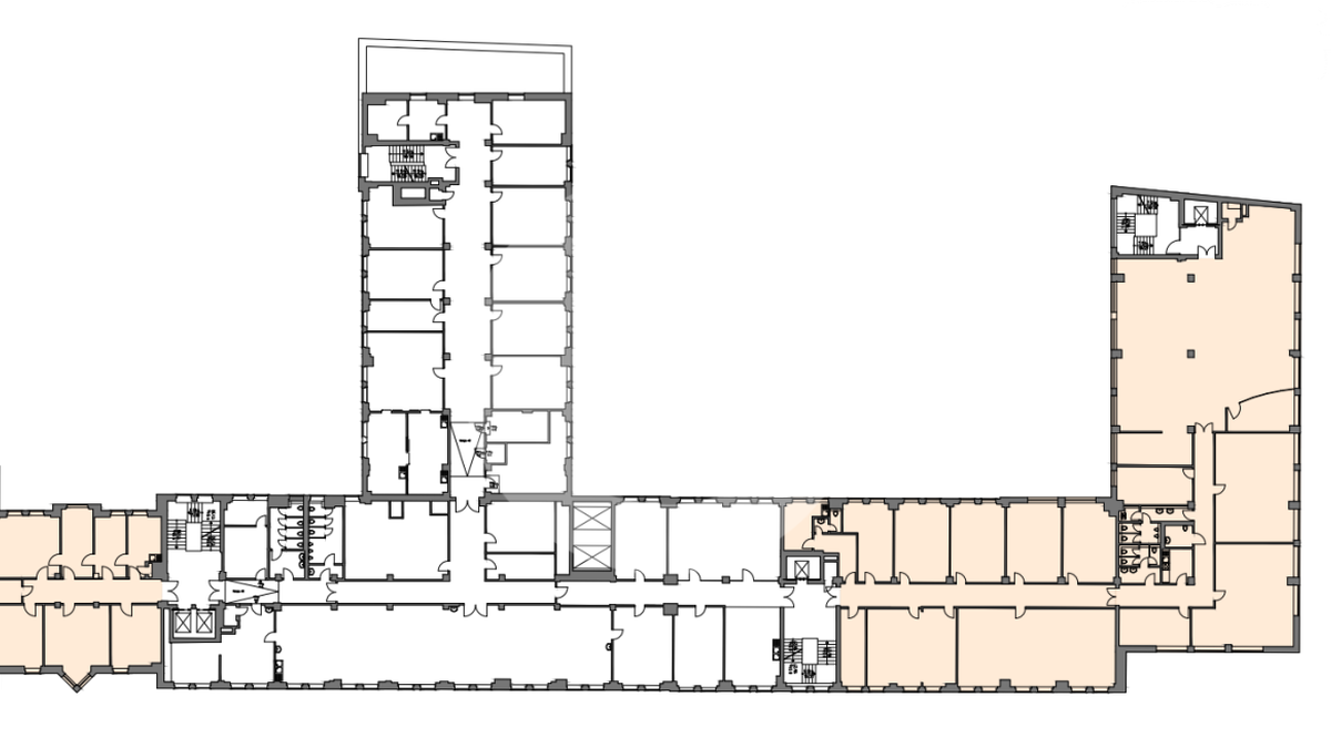
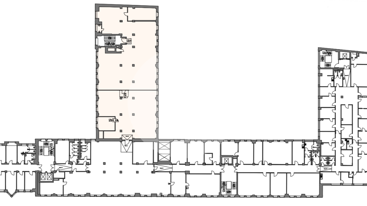
1. OG: ca. 1.800 m², teilbar ab ca. 680 m²

Ferner können weitere Archivflächen im Untergeschoss angemietet werden (68 m²).
Lagebeschreibung
Das attraktive Objekt befindet sich direkt am Essener Hauptbahnhof in bester Citylage. Die Autobahnen A40 und A52 sind nur wenige Fahrminuten entfernt. Die U-Bahn Haltestelle des Hauptbahnhofes befindet sich direkt vor der Tür. Die beliebte Innenstadt ist in nur weniger als einer Minute zu Fuß erreichbar. Hier befinden sich zahlreiche Einkaufsmöglichkeiten, sowie ein breites gastronomisches Angebot.

Bedeutende Unternehmen in der Büromarktzone: Commerzbank, DAK, Deutsche Bank, DB Schenker, Evonik

Hotels in der Umgebung: Intercity Hotel, Select Hotel, Center Hotel, Motel One, GHOTEL
Ausstattung
• Beleuchtung: LED-Deckenleuchten
• Bodenbelag: Vinyl-, Teppichboden
• Verkabelung: CAT-5 Verkabelung, Glasfaseranschluss vorhanden
• Verkabelungsort: Bodentanks/Kabelkanäle
• Klimatisierung: teilklimatisiert
• Teeküche: voll ausgestattet
• Heizungsart: Fernwärme
• Aufzug: Personenaufzug
• ebenerdiger Zugang

Die Ausstattung kann bei Bedarf angepasst werden!
Flächen im Überblick

Alle Preisangaben sind exkl. MwSt.

- ca. 0 m² -
Flächenart
Freie Fläche
ca. 0 m²
Miete
auf Anfrage
Bezug
Nach Vereinbarung