Essen , 45128 Essen
Adresse
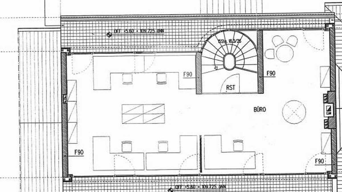
Büroflächen
98 m²
Fläche (ca.)
ab 1.372,00 €/m²
Miete
98 m²
Teilbar ab
Energieausweis
Der Energieausweis wird zur Besichtigung mitgebracht.
Provision
Provisionsfrei für den Mieter

Ihre neue Bürofläche in Essen Rüttenscheid | helle Räumlichkeiten | schnelle Anbindung!

Diese moderne Immobilie in gefragter Bestlage von Rüttenscheid vereint repräsentative Flächen mit funktionaler Effizienz. Helle, hochwertig ausgestattete Büroräumlichkeiten, eine attraktive Dachterrasse sowie Parkettböden schaffen ein professionelles Ambiente. Dank Glasfaseranschluss, CAT-6-Verkabelung, LED-Beleuchtung, Fernwärme, Teilklimatisierung und energetisch optimierter Dach- und Fensteranlagen ist ein nachhaltiger und leistungsfähiger Geschäftsbetrieb gewährleistet. Parkmöglichkeiten stehen in Form von Außenstellplätzen und Garagen zur Verfügung und gewährleisten eine komfortable An- und Abreise.

Derzeit stehen folgende Flächen zur Disposition:

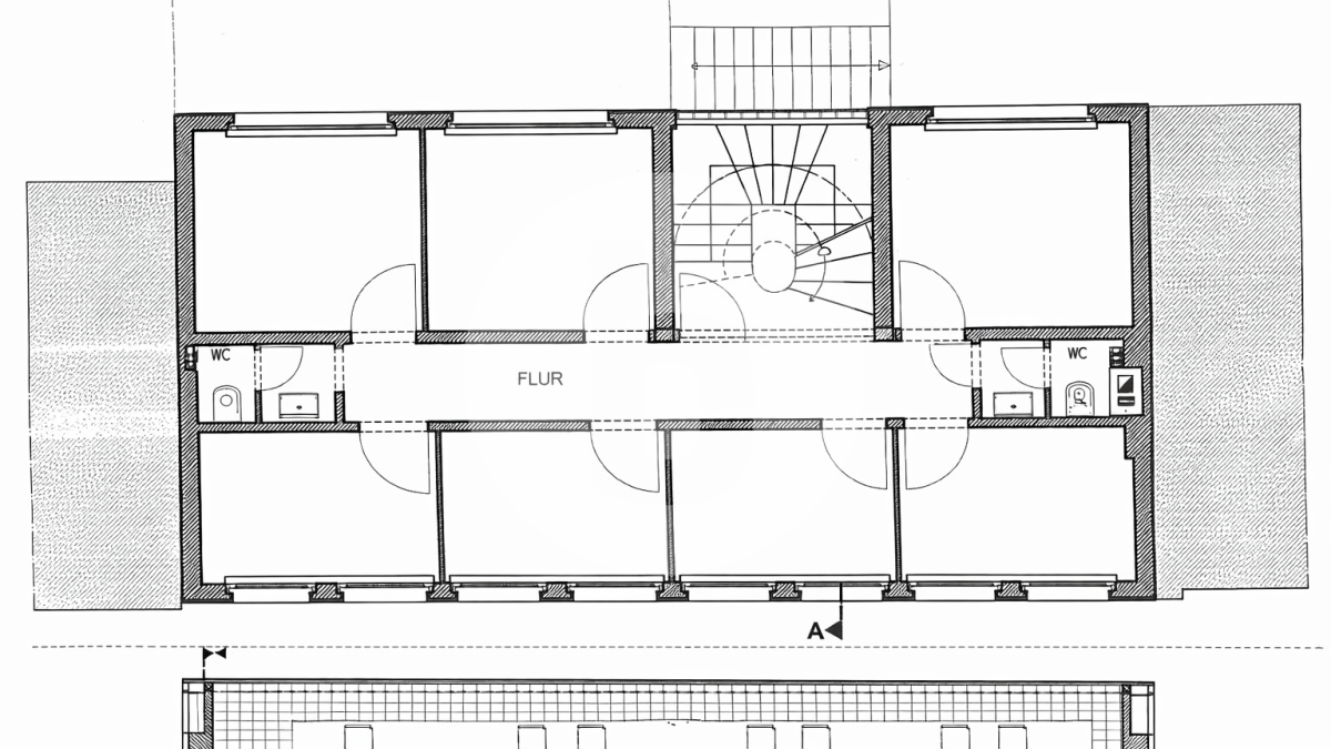
2. OG: 105 m²
SG: 98 m²

UG: 25 m² Archivfläche (belichtet)
Lagebeschreibung
Das Objekt befindet sich in der nachgefragtesten Büromarktzone in Essen-Rüttenscheid. Die Innenstadt sowie der Hauptbahnhof sind nur wenige Fahrminuten vom Objekt entfernt. Die bekannte Rüttenscheider Straße "Rü" ist fußläufig zu erreichen. Zahlreiche kleine Trend-Shops, Boutiquen, Straßencafés und die vielen kleinen Seitenstraßen verleihen der "Rü" ihren besonderen Charme. Die Autobahnen A40 und A52 liegen nur etwa fünf Fahrminuten entfernt. Den Flughafen Düsseldorf erreichen Sie in ca. 20 Minuten.

Bedeutende Unternehmen in der Büromarktzone: STEAG GmbH, Emscher Wassertechnik GmbH, Stadtwerke Essen AG, National Bank, Hochtief,
Ausstattung
• Bodenbelag: Parkettboden
• Sonnenschutz: außenliegend, manuell
• Beleuchtung: LED-Deckenbeleuchtung
• Kühlung: teilklimatisiert
• Verkabelung: CAT-6
• Verkabelungsort: Fensterbankkabelkanäle
• Teeküche: voll ausgestattet
• Heizungsart: Fernwärme

Die Ausstattung kann bei Bedarf flexibel an die Nutzerwünsche angepasst werden!

Highlights:

• Dachterrasse
• beste Lage in Rüttenscheid
• Archiv- und Lagerflächen im UG
• Glasfaseranschluss
• Dacherneuerung inkl. Verbesserung Wärmedämmung (2009)
• modernisierte Leitungen
• Kunststofffenster mit Isolierverglasung (2002 und 2009 im SG)
Flächen im Überblick

Alle Preisangaben sind exkl. MwSt.

- ca. 98 m² - Büro
Flächenart
Büro
Freie Fläche
ca. 98 m²
Miete
ab 1,372,00 €/m²
Bezug
Nach Vereinbarung