Essen , 45219 Essen
Adresse
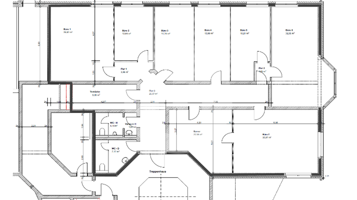
Büroflächen
232 m²
Fläche (ca.)
ab 8,50 €/m²
Miete
232 m²
Teilbar ab
Energieausweis
Für diese Immobilie liegt uns noch kein Energieausweis vor bzw. wird zur Besichtigung mitgebracht.
Provision
Provisionsfrei für den Mieter
Besonderheiten
Barrierefrei

Helle und moderne Büroflächen "Im Teelbruch"

Das Objekt umfasst Büroflächen auf vier Ebenen. Der ansprechende Ziegelbau öffnet sich zum Grundstück hin zu einem großzügig gestalteten Innenhof. Die helle Eingangshalle vermittelt durch eine pyramidenförmige Glaskuppel im Dach einen einladenden ersten Eindruck. Dieser wird durch das repräsentative Treppenhaus aus Marmor und Granit sowie einen zentral positionierten Brunnen zusätzlich unterstrichen.
Die Büroetagen sind flexibel konzipiert und können bedarfsgerecht in Einzel- oder Großraumbüros gegliedert werden. Sämtliche Etagen verfügen über Teeküchen sowie moderne Sanitärbereiche.
Lagebeschreibung
Das Objekt befindet sich im Gewerbegebiet "Im Teelbruch" in Essen-Kettwig und zeichnet sich durch eine verkehrsgünstige Lage aus. Die Autobahnanschlussstelle Essen-Kettwig zur A52 liegt in unmittelbarer Nähe; über das Autobahnkreuz Breitscheid besteht zudem eine direkte Anbindung an die A3.

Der Standort ist durch die Buslinie 142 in den öffentlichen Personennahverkehr eingebunden. Der Essener Hauptbahnhof ist in etwa 25 Minuten, der Düsseldorfer Hauptbahnhof in rund 30 Minuten erreichbar. Der Flughafen Düsseldorf liegt ca. 15 Fahrminuten entfernt und gewährleistet eine sehr gute nationale und internationale Erreichbarkeit.
Ausstattung
• Repräsentativer Eingangsbereich mit Natursteinboden
• Helle und moderne Büroräume
• Glastüren
• Flexible Raumaufteilung dank Gipskarton-Ständerwänden
• Arbeitsplatzgerechte Beleuchtung
• Kabelkanäle/CAT 7 Verkabelung
• Glasfaseranschluss im Gebäude
• Getrennte Damen- und Herren-WC's
• Teeküchen
• Innenliegender Sonnenschutz
Flächen im Überblick

Alle Preisangaben sind exkl. MwSt.

- ca. 232 m² - Büro
Flächenart
Büro
Freie Fläche
ca. 232 m²
Miete
ab 8,50 €/m²
Bezug
Nach Vereinbarung