Essen , 45144 Essen
Adresse
Büroflächen
929 m²
Fläche (ca.)
ab 6,50 €/m²
Miete
929 m²
Teilbar ab
Energieausweis
Für diese Immobilie liegt uns noch kein Energieausweis vor bzw. wird zur Besichtigung mitgebracht.
Provision
Provisionsfrei für den Mieter

Exklusiv über uns: Moderne Büroflächen in Essen | Flexibler Grundriss | viele Außenstellplätze

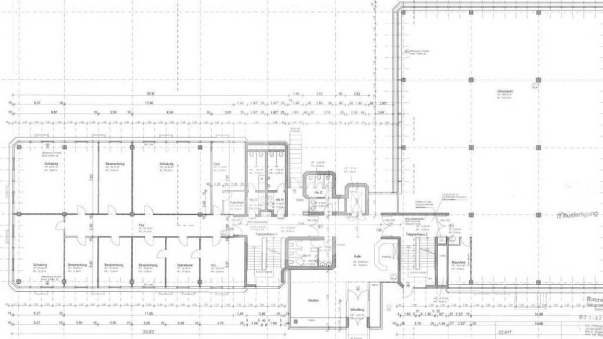
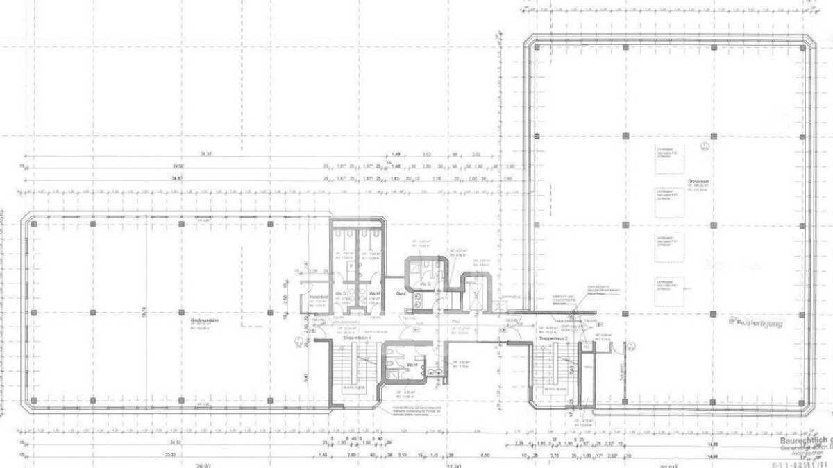
Bei dem Objekt handelt es sich um ein attraktives, viergeschossiges Bürogebäude in Essen-Frohnhausen. Die Büroflächen befinden sich in einem gepflegten Zustand und bieten eine moderne Ausstattung, welche sowohl funktional als auch ästhetisch ansprechend ist. Das Büro verfügt über große Fenster, die viel Tageslicht hereinlassen und eine angenehme Arbeitsatmosphäre schaffen. Der Grundriss kann flexibel an die Bedürfnisse des Nutzers angepasst werden.
Im Außenbereich stehen zahlreiche Stellplätze zur Verfügung.

Derzeit stehen folgende Flächen zur Disposition:

EG: 540 m²
1. OG: ca. 929 m²
2. OG: ca. 929 m²
3. OG: ca. 929 m²
Lagebeschreibung
Das Bürogebäude liegt zentrumsnah im Stadtteil Frohnhausen, der mit seinen ca. 26.000 Einwohnern der viertgrößte Stadtteil Essens ist und südwestlich der Innenstadt zwischen den Stadtteilen Rüttenscheid, Margarethenhöhe, Frohnhausen, West- und Südviertel liegt. Aufgrund der guten Lage zwischen dem Essener Zentrum und den äußeren Stadtteilen, weist Fronhausen ein dichtes Straßennetz mit mehreren, an die durch den Stadtteil verlaufende A 40 angebundenen Hauptverkehrsstraßen auf. Die Liegenschaft ist also optimal an das Verkehrsnetz angebunden. Die Anbindung an mehrere Bus-, Stadtbahn- und zwei U-Bahn-Linien ist ideal.
Ausstattung
• Beleuchtung: LED-Beleuchtung
• Bodenbelag: Teppichboden
• EDV-Verkabelung: CAT-7 vom Vormieter
• Sonnenschutz: außenliegend, elektrisch
• Teeküche: voll ausgestattet

Sonstiges: • Der Grundriss ist flexibel und die Räume können entsprechend nach Wunsch verändert werden
Flächen im Überblick

Alle Preisangaben sind exkl. MwSt.

- ca. 929 m² - Büro
Flächenart
Büro
Freie Fläche
ca. 929 m²
Miete
ab 6,50 €/m²
Bezug
Nach Vereinbarung