Obermeiderich , 47138 Duisburg
Adresse
Büroflächen
494 m²
Fläche (ca.)
ab 6,90 €/m²
Miete
494 m²
Teilbar ab
Energieausweis
Für diese Immobilie liegt uns noch kein Energieausweis vor bzw. wird zur Besichtigung mitgebracht.
Provision
Provisionsfrei für den Mieter

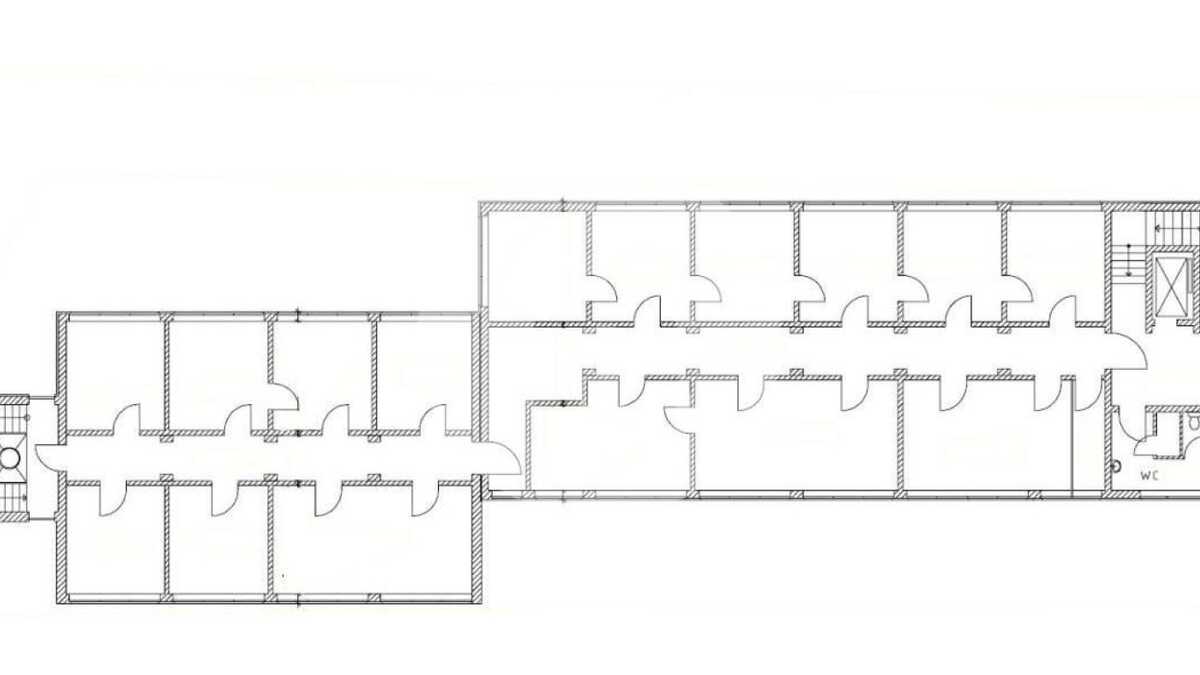
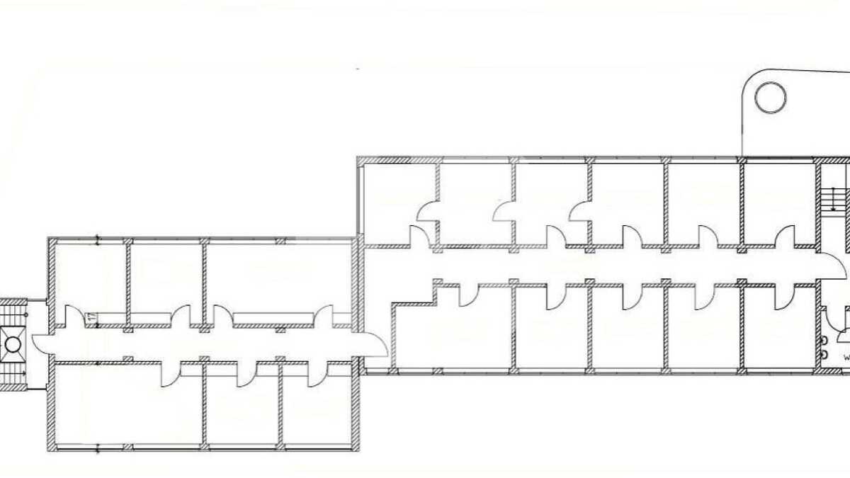
Flexibler Grundriss - 494 m² Bürofläche in Rheinnähe | Glasfaser vorhanden | PROVISIONSFREI

Die moderne und attraktive Gewerbeimmobilie verfügt über einen eindrucksvollen Eingangsbereich. Über diesen gelangt man mithilfe des Treppenhauses oder den Personenaufzügen problemlos in jede Etage des Gebäudes. Die gehobene Ausstattung der Büroflächen sorgt für einen modernen Arbeitsplatz. Alle Flächen sind mit einem Teppichboden ausgelegt, verfügen über einen außenliegenden Sonnenschutz und EDV-Verkabelung. Die tiefen Fenster, sowie die Glaselemente bewirken lichtdurchflutete Räumlichkeiten. Dem Mieter stehen ausreichend Parkflächen zur Anmietung zur Verfügung.

Zur Zeit stehen folgende Flächen zur Disposition:

Bürokomplex H1
EG: ca. 150 m²
1. OG: ca. 494 m²
2. OG: ca. 494 m²


Bürokomplex H2:
EG: 820 m²
1. OG: 820 m²
2. OG: 820 m²
3. OG: 820 m²
4. OG: 820 m²


Ferner stehen dem Nutzer Archivflächen im Untergeschoss zur Anmietung zur Verfügung.
Lagebeschreibung
Das Objekt liegt direkt am Duisburger Rhein-Herne-Kanal und ist damit trimodal angebunden. Die Autobahnen A40, A59 und der A3 sind sehr gut zu erreichen. Das ÖPNV-Netz ist bestens zu Fuß erreichbar. Zudem wird durch verschiedenste Restaurants, eine gute Nahversorgung geboten.

Bedeutende Unternehmen in der Umgebung: Knauf Interfer, de Beijer Logistik, Baufeld

Hotels der Umgebung: Hotel Friedrichs, B&B Hotels, ibis Hotel, Intercity Hotel
Ausstattung
• Bodenbelag: Teppichboden
• EDV-Verkabelung: vom Vormieter
• Kabelführung: Brüstungskanäle
• Sonnenschutz: außenliegend, manuell
• Teeküche: Anschlüsse vorhanden
• Beleuchtung: Deckenbeleuchtung
• Heizungsart: Fernwärme

Die Ausstattung kann kann bei Bedarf angepasst werden!
Flächen im Überblick

Alle Preisangaben sind exkl. MwSt.

- ca. 494 m² - Büro
Flächenart
Büro
Freie Fläche
ca. 494 m²
Miete
ab 6,90 €/m²
Bezug
Nach Vereinbarung