Bereits vermietet
Neudorf (Duisburg) , 47057 Duisburg
Adresse
Energieausweis
Für diese Immobilie liegt uns noch kein Energieausweis vor bzw. wird zur Besichtigung mitgebracht.
Provision
Provisionsfrei für den Mieter
Besonderheiten
Barrierefrei

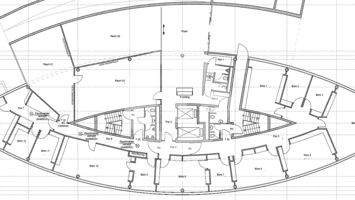
Nur bei uns: Klimatisiertes Büro | 462 m² | effizienter Grundriss | City-Nähe | PROVISIONSFREI

Das von Sir Norman Foster im Jahr 1992 erbaute "Haus der Wirtschaft" zeichnet sich durch seine individuelle Architektur und moderne, rahmenlose Außenfassade aus, welche die Glaselemente außergewöhnlich hervorhebt. Hauseigene Parkplätze können bei Bedarf für 65 EUR/Stück angemietet werden. Darüber hinaus wird dem Nutzer mit integrierter Fußbodenheizung und Vollklimatisierung die Voraussetzung für eine hervorragende Arbeitsatmoshphäre geboten.

Zur Zeit stehen folgende Flächen zur Disposition:

1. OG: 398,06 m²
2. OG: 535,20 m²
4. OG: 487,61 m²
5. OG: 462,02 m²
6. OG: 373,34 m²
7. OG: 324,00 m²
Lagebeschreibung
Das einzigartige moderne Bürogebäude befindet sich in unmittelbarer Nähe zur Duisburger Innenstadt sowie zur Uni Duisburg. Der Hauptbahnhof ist fußläufig in 5 Minuten erreichbar.
Die A40, A3 und A59 befinden sich nur wenige Fahrminuten entfernt. ÖPNV-Anbindungen sind innerhalb weniger Gehminuten zu erreichen. Durch die Lage an einer stark frequentierten Straße profitiert das Gebäude von seiner Sichtbarkeit und seiner Werbemöglichkeit.

Bedeutende Unternehmen in der Büromarktzone: Targo Bank Zentrale, DB Schenker.

Hotels in der Umgebung: Hotel Friedrichs, B&B Hotels, ibis Hotel
Ausstattung
• Sonnenschutz: außenliegend, elektrisch
• Bodenbelag: Teppichboden
• Klimatisierung: vorhanden
• Verkabelung: CAT-5
• Kabelführung: Bodentanks
• Beleuchtung: Rasterdeckenleuchten
• Teeküche: Anschlüsse vorhanden
• Aufzug: Personenaufzug
• Barrierearm: ebenerdiger Zugang
• Heizungsart: Zentralheizung, Fußbodenheizung

Die Ausstattung kann kann bei Bedarf angepasst werden!
Diese Fläche ist bereits vergeben

Kein Problem! Über 10.000 weitere Büroflächen warten auf Sie. Wir finden die perfekte Fläche für Ihr Vorhaben.