Duisburg , 47228 Duisburg
Adresse
Büroflächen
500 - 1.500 m²
Fläche (ca.)
ab 10,90 €/m²
Miete
500 m²
Teilbar ab
Energieausweis
Für diese Immobilie liegt uns noch kein Energieausweis vor bzw. wird zur Besichtigung mitgebracht.
Provision
Provisionsfrei für den Mieter
Besonderheiten
Barrierefrei

Repräsentative Büroräumlichkeiten mit hochwertiger Ausstattung | viele Stellplätze vorhanden

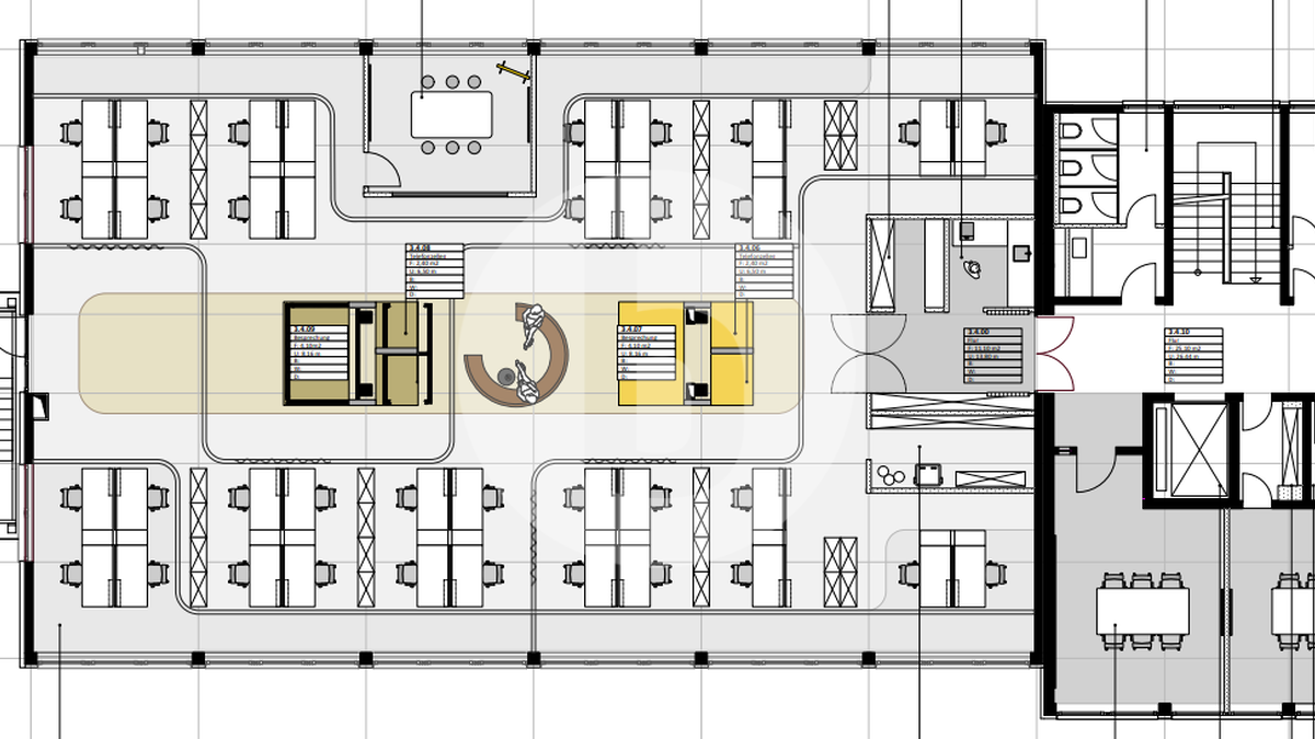
Bei dem angebotenen Objekt handelt es sich um eine 7-geschossige Büroimmobilie. Die vakanten Flächen sind frisch renoviert sowie klimatisiert und überzeugen mit einer modernen, hochwertigen Ausstattung, die für eine hervorragende Arbeitsatmosphäre sorgt. Bei Bedarf kann die Möblierung übernommen werden. Darüber hinaus stehen auf dem Gelände ausreichend Stellplätze zur Anmietung zur Verfügung.

Derzeit stehen folgende Flächen zur Disposition:

4. - 6. OG: jeweils ca. 500 m²
Lagebeschreibung
Die angebotene Immobilie befindet sich im Gewerbegebiet Mevissen. Die Verkehrsanbindung ist durch die schnell zu erreichenden Autobahnen A3, A57, A59, A40 und A42 ausgezeichnet. Der Flughafen Düsseldorf ist ca. 25 Fahrminuten entfernt. Auch die ÖPNV-Anbindung ist gut erreichbar, da der Duisburger Hauptbahnhof 10 Minuten Entfernt ist und alle wichtigsten Städte des Umlandes verbindet. In unmittelbarer Nähe der Immobilie befinden sich zahlreiche Gastronomien und Geschäfte des Alltages.

Bedeutende Unternehmen in der Büromarktzone: ThyssenKrupp Steel Europe AG, Klöckner & Co SE, DP World Logistics Germany B.V. & Co. KG, PCC SE
Ausstattung
• Verkabelung: CAT-7
• Verkabelungsort: Kabelsäulen
• Bodenbelag: Teppichboden
• Sonnenschutz: außenliegend, elektrisch (Raffstoren)
• Beleuchtung: Standleuchten
• Kühlung: zentrale Klima-/Lüftungsanlage
• Teeküche: voll ausgestattet
• Heizungsart: Wärmerückgewinnung
• Empfang: zeitweise besetzt
• möblierte Übernahme möglich

Die Ausstattung kann bei Bedarf angepasst werden!

Highlights:

• hochwertige Ausstattung
• repräsentative Räumlichkeiten
• Klimatisierung vorhanden
• viele Stellplätze (inkl. E-Ladepunkte)
• flexible Gestaltung
• sehr gute Anbindung
Flächen im Überblick

Alle Preisangaben sind exkl. MwSt.

- ca. 1.500 m² - Büro
Flächenart
Büro
Freie Fläche
ca. 1.500 m²
Teilbar ab
500 m²
Miete
ab 10,90 €/m²
Bezug
Nach Vereinbarung