Duisburg , 47051 Duisburg
Adresse
Energieausweis
Für diese Immobilie liegt uns noch kein Energieausweis vor bzw. wird zur Besichtigung mitgebracht.
Provision
Provisionsfrei für den Mieter
Besonderheiten
Barrierefrei

Attraktive Bürofläche | hervorragende Verkehrsanbindung | Stellplätze vorhanden | RUHR REAL

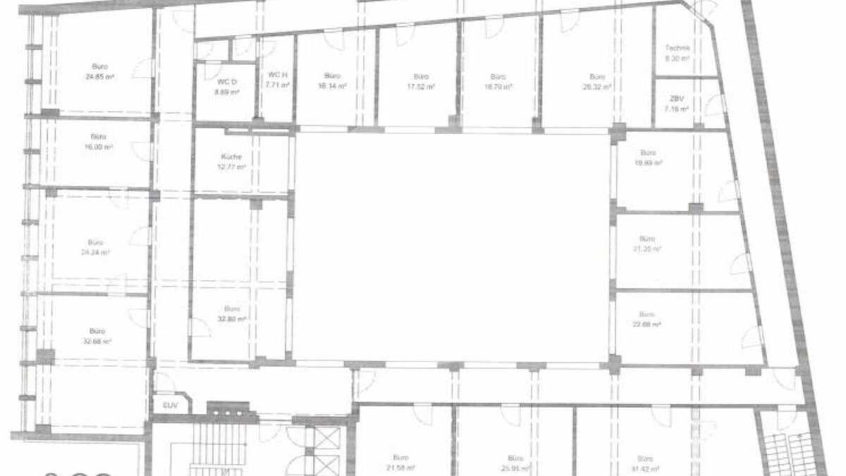
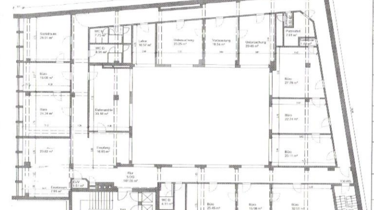
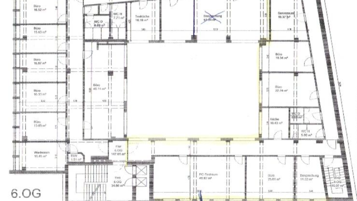
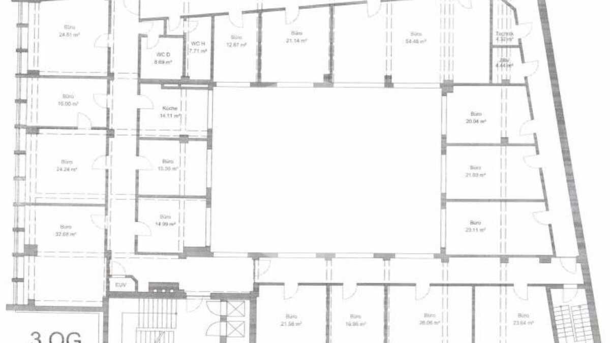
Bei dem attraktiven Geschäftshaus handelt es sich um eine beliebte Anlaufstelle verschiedenster Praxen, sowie Dienstleistern. Alle Ebenen des Gebäudes sind sowohl über das moderne Treppenhaus, als auch über einen Personenaufzug barrierefrei zu erschließen. Der Grundriss ist flexibel und kann nach den Wünschen des Mieters angepasst werden.

Derzeit stehen folgende Flächen zur Disposition:

5. OG: ca. 551 m²
6. OG: ca. 551 m²
Lagebeschreibung
Die zentral gelegene Immobilie befindet sich in der Duisburger Innenstadt. Die A 59 und A 40 befinden sich in unmittelbarer Nähe. Des Weiteren sind Bus- und Bahnhaltestellen, sowie der naheliegende Hauptbahnhof in wenigen Gehminuten zu erreichen. In der direkten Nachbarschaft befindet sich das Forum Duisburg, welches als Zentrum für Einzelhandel, Gastronomie und Büro in der City bekannt ist.

Hotels in der Umgebung: Duisburger Hof, Mercure Hotels, Ibis, ferrotel Duisburg

Bedeutende Unternehmen in der Büromarktzone: TARGO Bank Zentrale, Finanzamt, IHK Duisburg
Ausstattung
• Verkabelung: CAT-7 Verkabelung vom Vormieter, Glasfaseranschluss vorhanden
• Verkabelungsort: Bodentanks
• Bodenbelag: Teppichboden
• Beleuchtung: LED-Spots
• Sonnenschutz: elektrische Außenverschattung
• Aufzug: Personenaufzug

Die Ausstattung kann bei Bedarf angepasst werden!
Flächen im Überblick

Alle Preisangaben sind exkl. MwSt.

Königstraße 67 - 69
- ca. 0 m² -
Flächenart
Freie Fläche
ca. 0 m²
Miete
ab 10,00 €/m²
Bezug
Nach Vereinbarung