Duisburg , 47051 Duisburg
Adresse
Büroflächen
438 m²
Fläche (ca.)
ab 11,50 €/m²
Miete
438 m²
Teilbar ab
Energieausweis
Für diese Immobilie liegt uns noch kein Energieausweis vor bzw. wird zur Besichtigung mitgebracht.
Provision
Provisionsfrei für den Mieter

Moderne Büroflächen im Innenhafen | 438 - 995 m² | gute ÖPNV-Anbindung | Glaselemente

Das historische Kesselhaus sowie das anliegende Speichergebäude wurden durch eine umfassende Sanierung zu einer hochmodernen und äußerst attraktiven Büroimmobilie mit Charme umgebaut. Die sofort bezugsfertigen Büroflächen verfügen über attraktive Glaselemente und sind mit einem hochwertigen Teppichboden ausgestattet. Ein repräsentativer Empfangsbereich im Erdgeschoss des Gebäudes empfängt Besucher und Kunden. Die Möblierung kann bei Bedarf übernommen werden. Ferner stehen dem Objekt Parkplätze im Außenbereich zur Anmietung zur Verfügung.Zur Zeit stehen folgende Flächen zur Disposition:

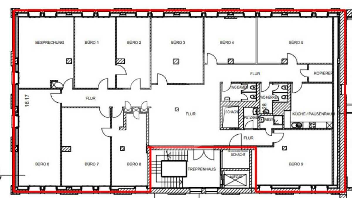
2. OG: 438 m²
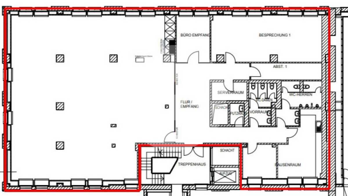
5. OG: 445 m²
Lagebeschreibung
Der Innenhafen, ein früherer Industriehafen, gilt als Musterbeispiel für den Strukturwandel im Ruhrgebiet. Der heutige Innenhafen zeichnet sich durch moderne Büroneubauten entlang der Schifferstraße sowie umgenutzte ehemalige Speichergebäude entlang des Philosophenweges aus. Die Objekte bieten fast ausnahmslos einen direkten Blick auf das Wasser.

Zu den bedeutensten Immobilien im Innenhafen zählen die Objekte: H2-Office, Looper, Five Boats, Küppersmühle, das Landesarchiv NRW usw.

Bedeutende Unternehmen in der Büromarktzone: Mitsubishi Hitachi Power, SPAETER, Volksbank Rhein-Ruhr, PKF

Hotels der Umgebung: Wyndham Duisburger Hof, Intercity Hotel, Ibis Budget City
Ausstattung
• Bodenbelag: Teppichboden
• Verkabelung: CAT5
• Verkabelungsort: Bodentanks
• Beleuchtung: Rasterleuchten
• Sonnenschutz: innenliegend, manuell
• Teeküche: voll ausgestattet
• Kühlung: kontrollierte Be- und Entlüftung
• Heizung: Gaszentralheizung
Flächen im Überblick

Alle Preisangaben sind exkl. MwSt.

- ca. 438 m² - Büro
Flächenart
Büro
Freie Fläche
ca. 438 m²
Miete
ab 11,50 €/m²
Bezug
Nach Vereinbarung