Hansaallee 249, 40549 Düsseldorf
Adresse
Büroflächen
316 m²
Fläche (ca.)
ab 12,00 €/m²
Miete
316 m²
Teilbar ab
Energieausweis
Für diese Immobilie liegt uns noch kein Energieausweis vor bzw. wird zur Besichtigung mitgebracht.
Provision
Provisionsfrei für den Mieter

Repräsentative Büroflächen in Düsseldorf provisionsfrei zu mieten

Die glänzende Fassade mit den großzügigen Fensterflächen macht das freistehende Carré schon von außen zu einem Highlight. Aber das Äußere ist nicht der einzige Lichtblick: Auch im Inneren spielt Licht eine wichtige Rolle. Die Sonne flutet durch große Fensterflächen in die Büros. Und auch die großzügige Geschosshöhe von drei Metern fördert den Lichteinfall und öffnet den Blick auf den Innenhof. Drei Personenaufzüge und Doppelböden in allen Büro- und Flurräumen erlauben eine individuelle, komfortable Umsetzung Ihrer Pläne. Atrium ist Vielseitigkeit auf fünf Etagen. Egal ob Sie das als ein Großraumbüro oder kleine Mieteinheit anmieten wollen: Teilen Sie die Flächen individuell nach Ihren Wünschen auf und nutzen Sie Atrium optimal für Ihren Erfolg.
Lagebeschreibung
Das Mietobjekt befindet sich im sogenannten "Forum Oberkassel", in direkter Nähe zu den linksrheinischen Bürostandorten "Seestern" und "Prinzenpark". Hier haben sich in den letzten Jahren namhafte Großkonzerne, wie zum Beispiel Alps, Toshiba, ÖRAG, Loesche, Lentjes etc. niedergelassen.
Die Düsseldorfer City und der International Airport Düsseldorf sind von hier aus in nur wenigen Fahrminuten erreichbar. Durch die hervorragende Anbindung an die Autobahnen A 52, A 57, sowie zur A 46 besteht eine schnelle Verbindung zu den Städten Köln, Essen, Krefeld, Mönchengladbach und Aachen. Haltestellen des öffentlichen Personennahverkehrs befinden sich unmittelbar am Objekt.
Ausstattung
- Aluminium-Fensterrahmen mit Doppelisolierverglasung
- EDV-Verkabelung über Doppelboden
- 3 Treppenhäuser mit insgesamt 3 Personen-Aufzügen
- öffenbare Fenster mit Dreh-/Kippbeschlag
- Teeküche
- Teppichboden
- CAT 5-Verkabelung
- hochwertige Glastrennwandelemente
- Deckenbeleuchtung
- EDV-Arbeitsplatzbeleuchtung
- Sonnenschutz
- getrennte Damen- und Herren WC´s
- Teilklimatisierung
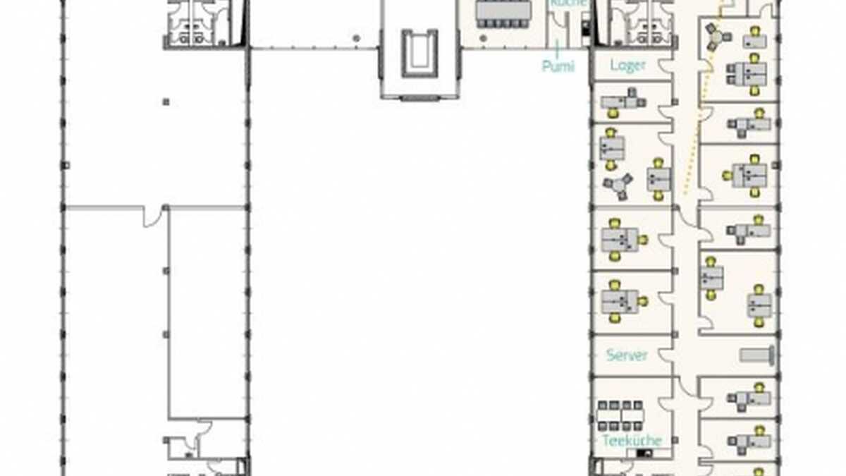
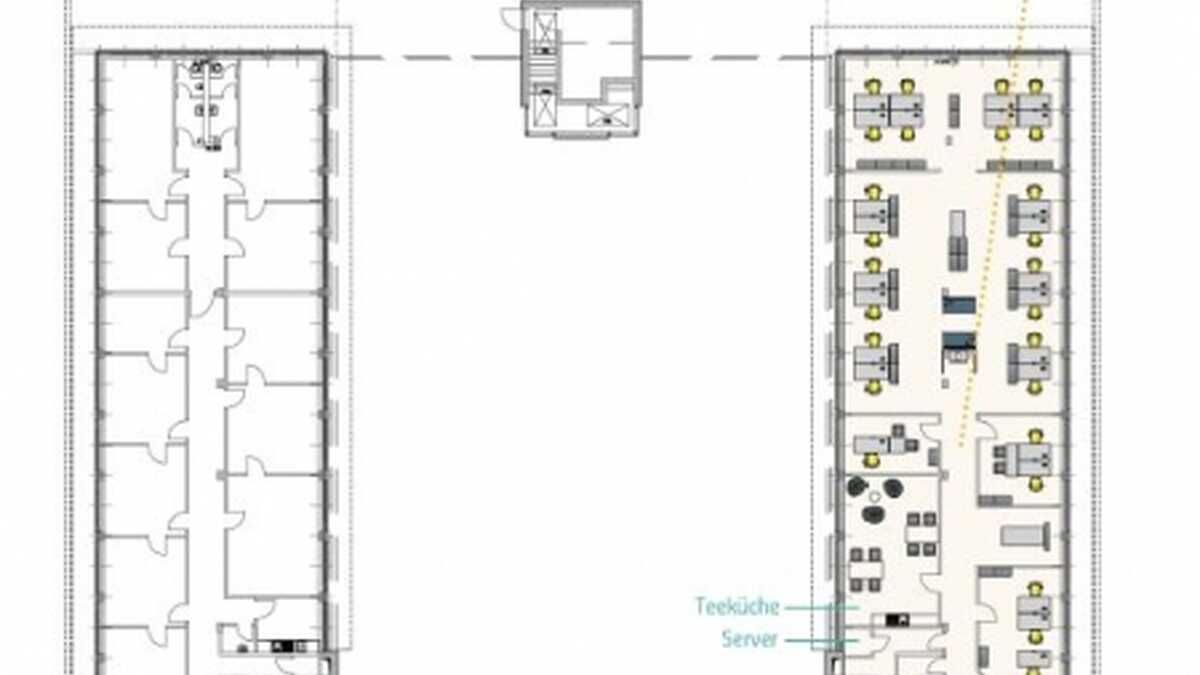
Flächen im Überblick

Alle Preisangaben sind exkl. MwSt.

- ca. 316 m² - Büro
Flächenart
Büro
Freie Fläche
ca. 316 m²
Miete
ab 12,00 €/m²
Bezug
Nach Vereinbarung