Luisenstraße 9, 40215 Düsseldorf
Adresse
Büroflächen
106 m²
Fläche (ca.)
ab 17,50 €/m²
Miete
106 m²
Teilbar ab
Energieausweis
Für diese Immobilie liegt uns noch kein Energieausweis vor bzw. wird zur Besichtigung mitgebracht.
Provision
Provisionsfrei für den Mieter

Bürofläche in hervorragender Citylage zur Miete | provisionsfrei !

Das Objekt ist ein 8-geschossiges Bürohaus mit 2-geschossiger Hofbebauung. Es hat eine repräsentative Fassadengestaltung durch großzügige Belichtungselemente und Granitverkleidungen. Der Eingangsbereich ist in Marmor bzw. Granit gestaltet. Ein Personenaufzug mit Edelstahlkabine und Natursteinboden sowie eine objekteigene Tiefgarage ist ebenfalls vorhanden.
Lagebeschreibung
Das Objekt befindet sich in hervorragender Citylage. Zwischen Königsalle und Friedrichstraße gelegen. Über die nahe gelegene Rhein-Knie-Brücke besteht eine hervorragende Anbindung an das linksrheinische Stadtgebiet und die BAB's A 52 und A 57. Mehrere öffentiche Parkhäuser befinden sich in direkter Nähe des Objektes.
S-Bahn, Straßenbahn- und Bushaltestellen sind nur wenige Gehminuten vom Objekt entfernt.
Ausstattung
Das Objekt verfügt über folgende Ausstattungsdetails:
-antistatischer Teppichboden
-Glasfasertapete
-Fensterbank-Kabelkanäle
-EDV-gerechte Rasteraufbauleuchten
-Gegensprechanlage
-getrennte WC-Anlagen
-Teeküche
Flächen im Überblick

Alle Preisangaben sind exkl. MwSt.

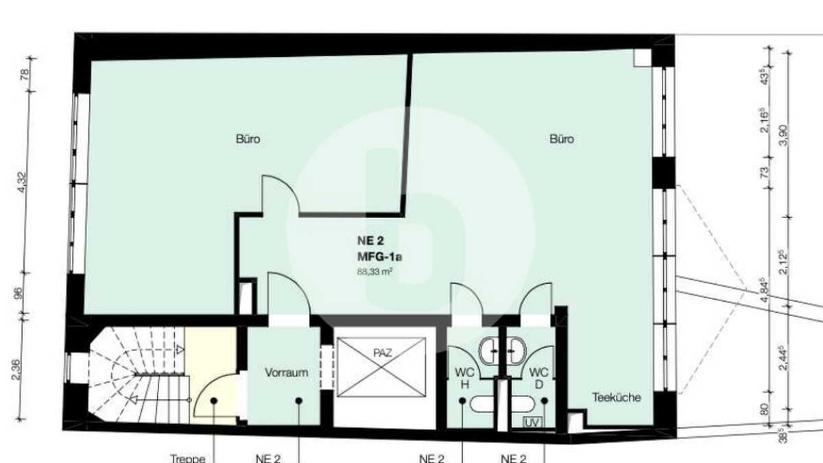
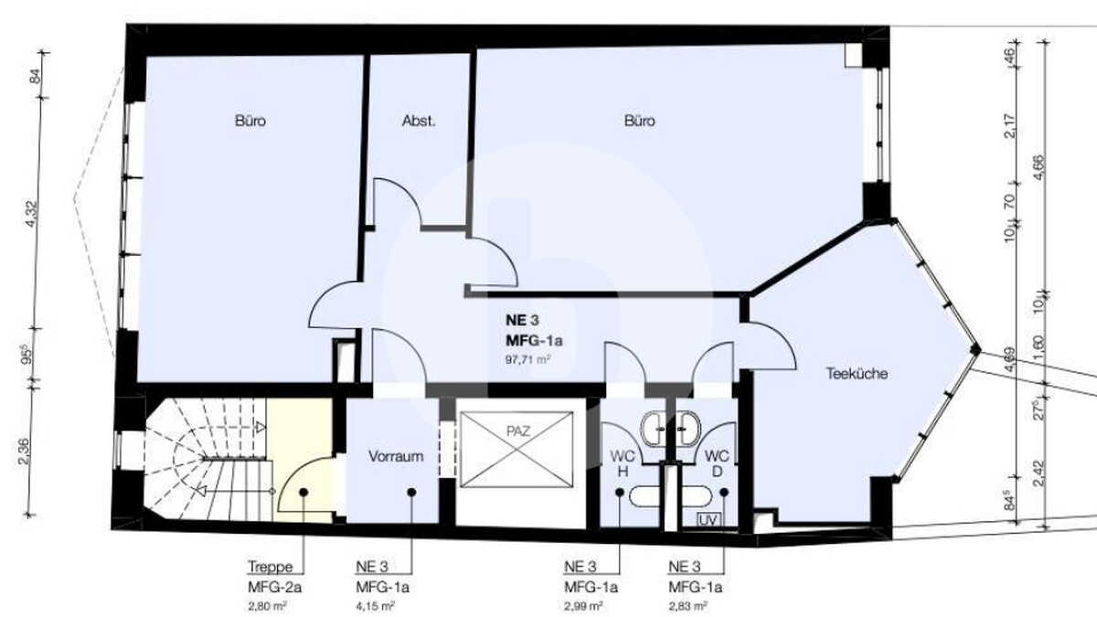
- ca. 106 m² - Büro
Flächenart
Büro
Freie Fläche
ca. 106 m²
Miete
ab 17,50 €/m²
Bezug
Nach Vereinbarung