Mitte (Dortmund) , 44137 Dortmund
Adresse
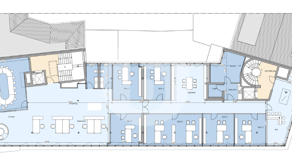
Büroflächen
556 m²
Fläche (ca.)
auf Anfrage
Miete
556 m²
Teilbar ab
Energieausweis
Für diese Immobilie liegt uns noch kein Energieausweis vor bzw. wird zur Besichtigung mitgebracht.
Provision
Provisionsfrei für den Mieter
Besonderheiten
Barrierefrei

Hochwertig ausgestattete Büroflächen mit guter Visibilität | BREEAM zertifiziert

Die moderne Gewerbeimmobilie besticht durch Ihre zentrale Lage in der Dortmunder Innenstadt. Die interessante Außenarchitektur des Gebäudes, sowie die großen teilweise bodentiefen Fensterfronten sorgen für einen repräsentativen und angenehmen Arbeitsplatz.

Zur Zeit stehen folgende Flächen zur Disposition:

1. OG: ca. 148 m²
5. OG: ca. 519 m²
6. OG: ca. 556 m²
Lagebeschreibung
Das Objekt befindet sich mitten in der Dortmunder City, unweit des Hauptbahnhofs. In nur wenigen Fahrminuten sind die Autobahnen (A40, A45, A1, A2) und der Flughafen erreichbar. Aufgrund der zentralen Lage ist darüber hinaus eine sehr gute Anbindung an den ÖPNV gewährleistet.
Gastronomisches Angebot und zahlreiche Händler in der Umgebung gewährleisten eine optimale Nahversorgung.

Hotels in der Umgebung: Mercure Hotel, Coffee Fellows Hotel, A&O Hotel

Bedeutende Unternehmen in der Büromarktzone: Sparkasse, Medizinischer Dienst der Krankenkassen
Ausstattung
• Sonnenschutz: außenliegend, elektrisch
• Bodenbelag: Teppichboden, PVC mit Holzoptik
• Verkabelung: CAT-6
• Kühlung: teilw. klimatisiert
• Kabelführung: Bodentanks
• Beleuchtung: arbeitsplatzgerechte Deckenbeleuchtung
• Teeküche: voll ausgestattet
• Aufzug: Personenaufzug
• Barrierearm: ebenerdiger Zugang

Die Ausstattung kann kann bei Bedarf angepasst werden!
Flächen im Überblick

Alle Preisangaben sind exkl. MwSt.

- ca. 556 m² - Büro
Flächenart
Büro
Freie Fläche
ca. 556 m²
Miete
auf Anfrage
Bezug
Nach Vereinbarung