Mitte (Dortmund) , 44137 Dortmund
Adresse
Büroflächen
315 - 932 m²
Fläche (ca.)
ab 14,50 €/m²
Miete
315 m²
Teilbar ab
Energieausweis
Für diese Immobilie liegt uns noch kein Energieausweis vor bzw. wird zur Besichtigung mitgebracht.
Provision
Provisionsfrei für den Mieter
Besonderheiten
Barrierefrei

Hervorragend ausgestattete Büroflächen im HCC in sehr zentraler Innenstadtlage!

Die Büroimmobilie HCC teilt sich in zwei Gebäudeteile. Das Hochhaus, auch "Tower" genannt, verfügt über 20 Etagen, welche alle über das eindrucksvolle Foyer und die vier innenliegenden Glasaufzüge zu erschließen sind. Im Tower befinden sich neben zahlreichen sehr gut ausgestatteten Büroflächen diverse weitere Räumlichkeiten wie Lounges, Konferenzräume etc., welche von den ansässigen Firmen genutzt werden können. Das Pendant zum Tower bildet der sehr markante 6 geschossige Gebäudeflügel "Tortenstück". In diesem Gebäudeabschnitt befindet sich das hauseigene Bistro, welches über eine Außenterrasse verfügt und allen Mietern zur Verfügung steht.

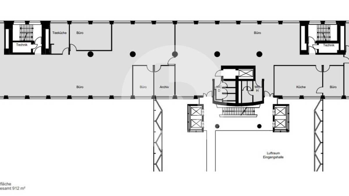
Ferner bietet Ihnen das Objekt flexible Grundrissvarianten, welche die Möglichkeiten Großraum-, Gruppen-, und Einzelbüros beinhaltet.


Derzeit steht folgende Fläche zur Verfügung:

Souterrain: 812 m²
EG: 890 m²
1. OG: 932 m²
6. OG: 542 m²
10. OG: 912 m²

Die Möglichkeit Außenstellplätze oder PKW-Stellplätze in der hauseigenen Tiefgarage zu Mieten besteht ebenfalls.
Lagebeschreibung
Das markante Landmark "Harenberg City-Center" (HCC) befindet sich in direkter Innenstadtlage von Dortmund und ist eines der modernsten Bürogebäude der Stadt.
Die Autobahnen A2, A40, A42, A45 sowie der Flughafen sind in nur wenigen Minuten mit dem Auto erreichbar.
Die Immobilie ist darüber hinaus hervorragend an das ÖPNV Netz in alle Richtungen angebunden.
Ferner garantiert der Standort aufgrund des zahlreichen Angebots von Handels- und Gastronomieunternehmen eine ideale Nahversorgung.

Hotels der Umgebung: LivInn, Novum, Mercure Hotel, NH Dortmund

Bedeutende Unternehmen in der Büromarktzone: Creditreform Dortmund, Ruhr Nachrichten Verlag, AOK
Ausstattung
• Bodenbelag: Teppichboden
• EDV-Verkabelung: nach Absprache
• Kabelführung: Bodentanks
• Sonnenschutz: innenliegend
• Beleuchtung: Arbeitsplatzgerechte Beleuchtung
• Lüftung: Kombinierte Kühl- und Lüftungsanlage
• Sicherheit: Zutrittskontrollsystem
• WC-Anlagen: getrennte Damen- und Herren WCs
• Aufzüge: 4 gläserne Aufzüge vorhanden

Sonstiges:
• 24 Stunden besetzter Empfang
• Hohlraumfußböden
• flexible Grundrissvarianten für Gruppe -, Großraum-, oder Einzelbüros
• Fenster mit Wärme- u. Schallschutzisolierung
Flächen im Überblick

Alle Preisangaben sind exkl. MwSt.

- ca. 932 m² - Büro
Flächenart
Büro
Freie Fläche
ca. 932 m²
Teilbar ab
315 m²
Miete
ab 14,50 €/m²
Bezug
Nach Vereinbarung