Bochum , 44789 Bochum
Adresse
Energieausweis
Für diese Immobilie liegt uns noch kein Energieausweis vor bzw. wird zur Besichtigung mitgebracht.
Provision
Provisionsfrei für den Mieter

207 m² Citybüro direkt am HBF!| hervorragende Anbindung | lichtdurchflutete Räume | RUHR REAL

Die Büroflächen befinden sich inmitten der Bochumer Innenstadt, nahe dem Hauptbahnhof. Die schicke Außenfassade macht das Objekt zu einem echter Hingucker. Durch die großen, zahlreichen Fenster sind alle Räume lichtdurchflutet und bieten einen Arbeitsplatz zum wohlfühlen. Mit einem Personenaufzug erreicht man problemlos alle Etagen. Die Anbindungen an den ÖPNV und die Autobahn sind durch die zentrale Lage exzellent. Für den neuen Mieter stehen Stellplätze zur Anmietung bereit.

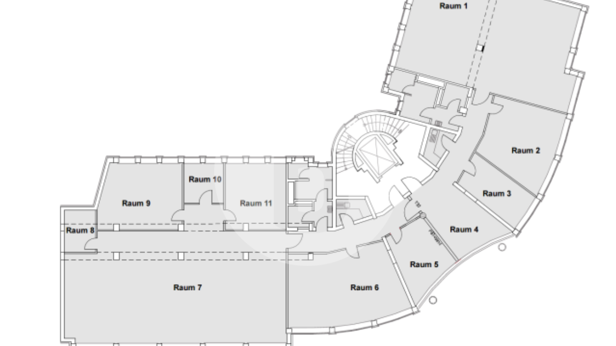
Folgende Flächen stehen aktuell zur Disposition:

EG (1): 255 m²
1. OG (1): 321 m²
1. OG (2): 207 m²
Lagebeschreibung
Das Objekt befindet sich in direkter Innenstadtlage gegenüber vom Bochumer Hauptbahnhof. Die Autobahnen A40 und A43 sind in wenigen Fahrminuten zu erreichen. Die Bochumer Innenstadt ist fußläufig entfernt. Der Kortumpark befindet sich am Gebäude und sorgt für Naherholung in der Mittagspause.

Bedeutende Unternehmen in der Büromarktzone: IHK Mittleres Ruhrgebiet, Sparkasse Bochum, ARAL BP, Stadtwerke Bochum, KONE Aufzüge

Hotels der Umgebung: Mercure Hotel, acora Hotel, ibis styles, Hotel Claudius
Ausstattung
• Sonnenschutz: teilw. innenliegend, manuell
• Bodenbelag: Teppichboden
• Verkabelung: KAT-7
• Kabelführung: Fensterbankkabelkanal
• Beleuchtung: Rasterleuchten
• Aufzug: Personenaufzug
• Heizungsart: Fernwärme

Die Ausstattung kann bei Bedarf angepasst werden!
Flächen im Überblick

Alle Preisangaben sind exkl. MwSt.

- ca. 0 m² -
Flächenart
Freie Fläche
ca. 0 m²
Miete
ab 9,90 €/m²
Bezug
Nach Vereinbarung